Subaru Enthusiasts Car Club of the Sierras  

Go Back   Subaru Enthusiasts Car Club of the Sierras > Off Topic Forums > Off Topic Chat

Off Topic Chat Talk about life in general...

Reply
 
Thread Tools
Old 2006-12-01, 07:12 PM   #1
sperry
The Doink
 
sperry's Avatar
 
Real Name: Scott
Join Date: Nov 2002
Location: Portland, OR
Posts: 20,335
 
Car: '09 OBXT, '02 WRX, '96 Miata
Class: PDX/TT-6
 
The way out is through
Default New winter project!

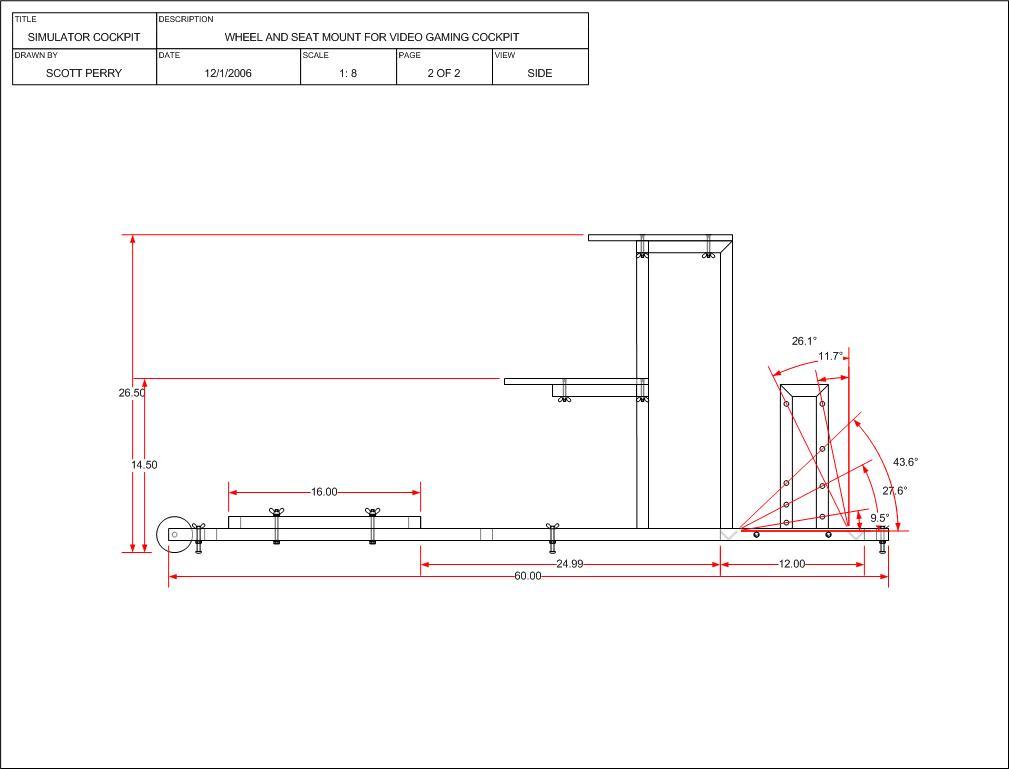
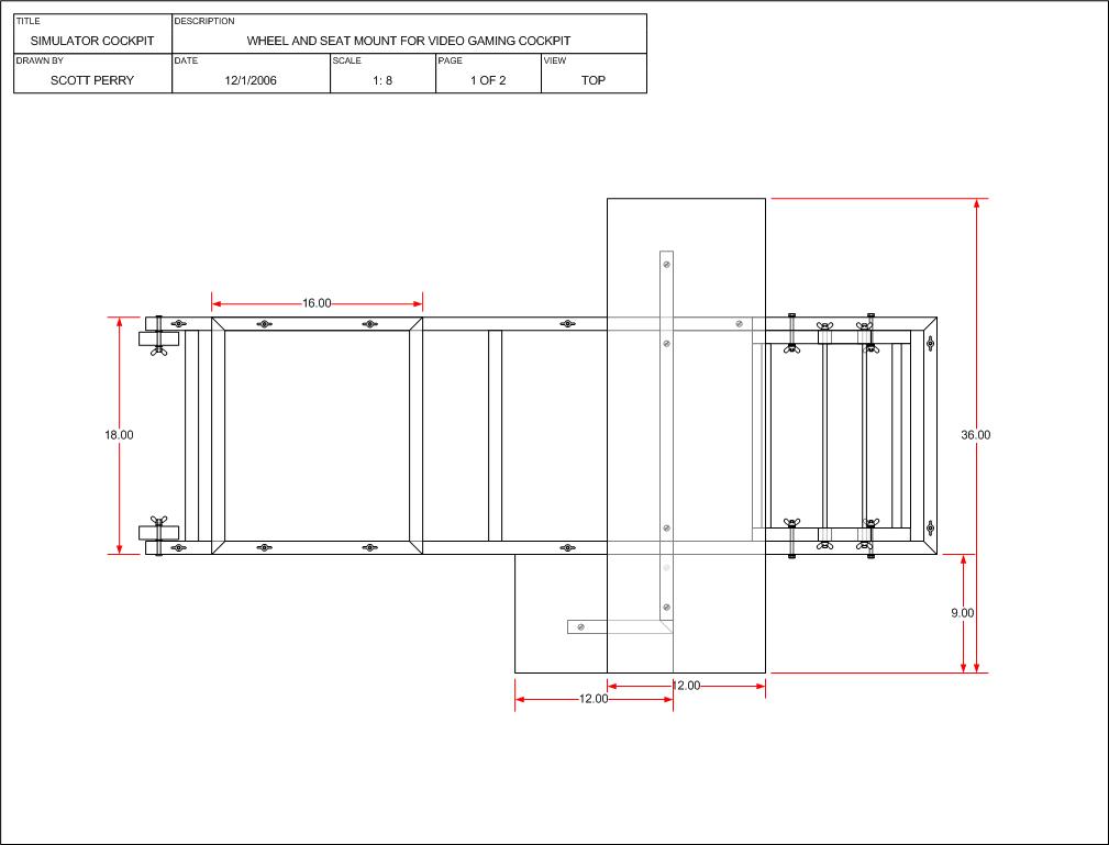
All I need is a welder, a miter box, a drill press, and to learn how to use all three. Oh, and the driver's seat out of my WRX.

Austin, give me some feedback... and no bitching about the drawings, I've only got a copy of Microsoft Visio. I really need a simple 3D modeling tool to draw this right, it's tough to understand w/o a decent perspective drawing.
Attached Thumbnails
Click image for larger version

Name:	Cockpit_Seat_Frame_top.jpg
Views:	234
Size:	51.0 KB
ID:	3918  

Click image for larger version

Name:	Cockpit_Seat_Frame_side.jpg
Views:	215
Size:	50.5 KB
ID:	3919  

__________________
Is you is, or is you ain't, my con-stit-u-ints?
sperry is offline   Reply With Quote
Old 2006-12-01, 07:27 PM   #2
Kevin M
EJ22T
 
Kevin M's Avatar
 
Join Date: Sep 2003
Location: Reno
Posts: 9,445
 
Car: '93/'01 GF6, mostly red
Class: 19 FP
Default

I haven't used it in a while, but the editing software from emachineshop.com can handle basic solids. Looks like you could do what you're trying to make in it.

Also, I've got a non-sliding bracket for the driver's front seat of an Impreza if you want to borrow it as a template so you can mount your stocker directly to your new frame.
__________________
FWD is the new AWD
Kevin M is offline   Reply With Quote
Old 2006-12-01, 07:42 PM   #3
Joeyy
i can has kart?
 
Joeyy's Avatar
 
Join Date: Jun 2005
Location: CA
Posts: 1,228
Default

Take a look at this one for some ideas.

http://www.nascar.com/2006/news/busi...eat/index.html
Joeyy is offline   Reply With Quote
Old 2006-12-01, 07:46 PM   #4
AtomicLabMonkey
Nightwalker
 
AtomicLabMonkey's Avatar
 
Real Name: Austin
Join Date: Dec 2002
Location: Oshkosh, WI
Posts: 4,063
 
Car: '13 WRX
 
YGBSM
Default

Quote:
Originally Posted by sperry
Austin, give me some feedback... and no bitching about the drawings, I've only got a copy of Microsoft Visio. I really need a simple 3D modeling tool to draw this right, it's tough to understand w/o a decent perspective drawing.
Concept looks good, I'm not sure I understand the pedal mounts though. An Iso view would help things. Is this something you'll be doing yourself, or are you going to give drawings to somebody else so they can weld up the frame? The dwgs have lots of dimensions missing; there would need to be more info spec'd if you have anyone else work on it.

I was also thinking a keyboard platform cantilevered off to the side of where you sit might be better IMO, so it's not obscured under the wheel and/or hitting you in the knees.
__________________
"None of you seem to understand. I'm not locked in here with you.. you're locked in here with me."
AtomicLabMonkey is offline   Reply With Quote
Old 2006-12-01, 08:36 PM   #5
tysonK
warehouse SECCS
 
tysonK's Avatar
 
Join Date: Mar 2003
Location: SoCal...
Posts: 6,253
 
Car: 04 Evo 99 Cadillac
Class: street de le mod
Default

What is this? a game controller?
__________________
Anjali? Anjali?


tysonK is offline   Reply With Quote
Old 2006-12-01, 08:44 PM   #6
sperry
The Doink
 
sperry's Avatar
 
Real Name: Scott
Join Date: Nov 2002
Location: Portland, OR
Posts: 20,335
 
Car: '09 OBXT, '02 WRX, '96 Miata
Class: PDX/TT-6
 
The way out is through
Default

Quote:
Originally Posted by AtomicLabMonkey
Concept looks good, I'm not sure I understand the pedal mounts though. An Iso view would help things. Is this something you'll be doing yourself, or are you going to give drawings to somebody else so they can weld up the frame? The dwgs have lots of dimensions missing; there would need to be more info spec'd if you have anyone else work on it.

I was also thinking a keyboard platform cantilevered off to the side of where you sit might be better IMO, so it's not obscured under the wheel and/or hitting you in the knees.
The pedal mounts allow normal pedal mounting w/ 3 adjustable tilt positions, plus the mounting of my PC pedals which are over mounted (like most real cars) with 2 adjustable tilt positions.

This is just a quick set of drawings I threw together within the limitations of Visio. If you look at it w/ the grid lines Visio has during drawing it's much easier to see dimensions. Plus, all the dimensions will likely change anyway once I pull the seat out of the WRX and sit in it and measure myself.

The goal is to have a frame that can hold a wheel, plus room for stashing a keyboard and a mouse on it. Plus a lower side table for a shifter on the right. I'm thinking about making it symmetrical so it can also be used for a flight stick/throttle... but that would drastically limit ingress/egress. Currently there's a ton of space on the left to get in/out of the thing w/o having to slide the seat.

I'm also attempting to make the pedal box and seat mount adjustable via several mounting holes between the sub-frames. So you can move the pedals or seat back/forward in 2" increments. That's in addition to the retained factory seat rails that provide finer fore/aft and height adjustment.

I'd be building this myself... as the tools and skill needed to build it would be useful for race car work as well.
__________________
Is you is, or is you ain't, my con-stit-u-ints?
sperry is offline   Reply With Quote
Old 2006-12-01, 10:15 PM   #7
M3n2c3
EJ205
 
M3n2c3's Avatar
 
Real Name: Jeremiah
Join Date: Jul 2005
Location: Lubbock, TX
Posts: 1,888
 
Car: Current: 2014 Forester 2.5i Premium. Old: 2005 Impreza 2.5RS, 2000 Forester L
Class: RNP, long ago (see motto)
 
"Kids are ruining autocross."
Default

Quote:
Originally Posted by tysonK
What is this? a game controller?
He wants to make a whole sim cockpit, for racing sims.
__________________
Small red text that looks curious at first glance but is ultimately inconsequential
M3n2c3 is offline   Reply With Quote
Old 2006-12-01, 10:37 PM   #8
Pat R.
EJ251
 
Pat R.'s Avatar
 
Join Date: Feb 2004
Location: Southeast Hades
Posts: 593
 
Car: Red
Class: Stockish
 
¿Quién es tu padre?
Default

While Scott is busy designing this contraption his girlfriend is laying naked in the next room wondering why she had to fall for a nerd.
__________________
Movin' to Montana soon, gonna be a dental floss tycoon.

Last edited by Pat R.; 2006-12-01 at 10:41 PM.
Pat R. is offline   Reply With Quote
Old 2006-12-01, 10:38 PM   #9
MattR
El Matador
 
MattR's Avatar
 
Real Name: Matt
Join Date: Dec 2002
Location: Reno, NV
Posts: 10,660
 
Car: 2012 Toyota Tacoma
Class: ?
Default

Quote:
Originally Posted by Pat R.
While Scott is busy designing this contraption his girlfriend is laying naked in the next room wondering why she had to fall for a nerd.

hahahaha, I was thinking the same thing....whooooooo.
__________________
"Dallas..We have a problem.”
MattR is offline   Reply With Quote
Old 2006-12-01, 10:38 PM   #10
left footed whooten
EJ251
 
left footed whooten's Avatar
 
Real Name: Dylan
Join Date: Apr 2005
Location: Truckee
Posts: 539
 
Car: 06 WRX wagon CGM
Class: Stuck working weekends
Default

__________________
I'd rather drink muddy water and sleep in a hollow log
left footed whooten is offline   Reply With Quote
Old 2006-12-02, 04:22 AM   #11
Bob Danger
Tape Terrorist
 
Bob Danger's Avatar
 
Join Date: Jul 2004
Location: Melmac
Posts: 1,792
 
Car: ?
Class: Retired!
 
Warning: Prolonged eye contact may cause insanity
Default

I designed one once. Except mine had a couple of cup holders, and a mini fridge.

I was going to build it to, but then I spent all my money on black jack, and hookers.
__________________
A fronte praecipitium a tergo lupi.
Bob Danger is offline   Reply With Quote
Old 2006-12-02, 07:11 AM   #12
MikeK
Captain Turbo
 
MikeK's Avatar
 
Join Date: Feb 2004
Location: Reno
Posts: 3,318
 
Car: 05 STi
Default

Quote:
Originally Posted by Bob Danger
but then I spent all my money on black jack, and hookers.
That's kind of like a winter project
MikeK is offline   Reply With Quote
Old 2006-12-02, 04:31 PM   #13
100_Percent_Juice
(40 percent vodka)
 
100_Percent_Juice's Avatar
 
Real Name: Joel
Join Date: Oct 2006
Location: Reno, NV
Posts: 4,446
 
Car: 2004WRX
Class: Baby-Hauler/GroceryGetter
Default

just make it out of pvc
__________________
"A power nap is when you sleep on someone who is weaker than you." - Dimitri Martin
100_Percent_Juice is offline   Reply With Quote
Old 2006-12-02, 04:31 PM   #14
100_Percent_Juice
(40 percent vodka)
 
100_Percent_Juice's Avatar
 
Real Name: Joel
Join Date: Oct 2006
Location: Reno, NV
Posts: 4,446
 
Car: 2004WRX
Class: Baby-Hauler/GroceryGetter
Default

oh and have the whole bottom made into a fish tank, yeah thats how you need to do it.
__________________
"A power nap is when you sleep on someone who is weaker than you." - Dimitri Martin
100_Percent_Juice is offline   Reply With Quote
Old 2006-12-02, 04:36 PM   #15
doubleurx
EJ205
 
doubleurx's Avatar
 
Join Date: May 2004
Location: Truckee
Posts: 1,948
Default

Scott, go to
www.sketchup.com

You can download the same 3d program I use for free. It is very intuitive and you will be able to model it accurately in 3d.

If you need some help getting started, just let me know.
__________________
Does it have a motor..............Does it have a motor?
doubleurx is offline   Reply With Quote
Old 2006-12-02, 06:46 PM   #16
sperry
The Doink
 
sperry's Avatar
 
Real Name: Scott
Join Date: Nov 2002
Location: Portland, OR
Posts: 20,335
 
Car: '09 OBXT, '02 WRX, '96 Miata
Class: PDX/TT-6
 
The way out is through
Default

Google sketchup is sweet! Here's what I drew up in a little over 2 hours:



I'll finish it up some time with the details, but if you've got sketchup, you can download it here:

http://sketchup.google.com/3dwarehou...bf90e027e727ea
__________________
Is you is, or is you ain't, my con-stit-u-ints?
sperry is offline   Reply With Quote
Old 2006-12-02, 09:00 PM   #17
sti deede
EJ205
 
sti deede's Avatar
 
Real Name: Deede
Join Date: Jun 2004
Location: Sacramento, CA
Posts: 1,789
 
Car: '96 4runner
Class: none.
Default

Glad to see you got a copy of Sketchup that was what I would have recommended if I had seen this sooner. I love that software.
sti deede is offline   Reply With Quote
Old 2006-12-03, 08:56 AM   #18
dknv
EJ207
 
dknv's Avatar
 
Join Date: Dec 2002
Location: 39n53, 119w90
Posts: 2,698
 
Car: RX-8
Class: CS maybe
Default

Quote:
Originally Posted by sperry
Google sketchup is sweet! Here's what I drew up in a little over 2 hours:



I'll finish it up some time with the details, but if you've got sketchup, you can download it here:

http://sketchup.google.com/3dwarehou...bf90e027e727ea
Neat. If you prototype something, you might want to consider protecting your intellectual property.
dknv is offline   Reply With Quote
Old 2006-12-03, 11:51 AM   #19
sperry
The Doink
 
sperry's Avatar
 
Real Name: Scott
Join Date: Nov 2002
Location: Portland, OR
Posts: 20,335
 
Car: '09 OBXT, '02 WRX, '96 Miata
Class: PDX/TT-6
 
The way out is through
Default

Quote:
Originally Posted by dknv
Neat. If you prototype something, you might want to consider protecting your intellectual property.
It's on Google under my name, and timestamped. So if Logitech suddenly starts selling this thing (unlikely) I can probably prove in court they ripped me off.

But frankly, I'm not all that worried... it's not like this design is totally original.
__________________
Is you is, or is you ain't, my con-stit-u-ints?
sperry is offline   Reply With Quote
Old 2006-12-03, 04:28 PM   #20
tysonK
warehouse SECCS
 
tysonK's Avatar
 
Join Date: Mar 2003
Location: SoCal...
Posts: 6,253
 
Car: 04 Evo 99 Cadillac
Class: street de le mod
Default

Yah don't they have those the Sharper Image? It looks like it uses metal and glass.
__________________
Anjali? Anjali?


tysonK is offline   Reply With Quote
Old 2006-12-03, 05:56 PM   #21
doubleurx
EJ205
 
doubleurx's Avatar
 
Join Date: May 2004
Location: Truckee
Posts: 1,948
Default

Quote:
Originally Posted by sperry
Google sketchup is sweet! Here's what I drew up in a little over 2 hours:



I'll finish it up some time with the details, but if you've got sketchup, you can download it here:

http://sketchup.google.com/3dwarehou...bf90e027e727ea
Keep up the good work and you will have a new job waiting for you here in Truckee!

It is an amazing program Scott. Now apply materials to it.

Your model looks really clean for a first time shot at it. If you go into the user forums there are tons of cars modeled in sketchup from yugos to ferraris. I do all my design work and even construction documents in that program now. The most incredible part about the program is the file sizes are so small.

Nice work!
__________________
Does it have a motor..............Does it have a motor?
doubleurx is offline   Reply With Quote
Old 2006-12-03, 08:59 PM   #22
khail19
EJ205
 
Real Name: Khail
Join Date: Dec 2002
Location: Reno, NV
Posts: 1,769
 
Car: 2016 VW GTI
 
Meets? We have meets?
Default

Sketchup is cool, I use it to plan out and draw speaker cabinets and subwoofer enclosures. Looks good Scott, what material are you planning on using for the frame? Steel seems like it would be kind of heavy, but aluminum is harder to weld if you are new at it.
khail19 is offline   Reply With Quote
Old 2006-12-04, 01:02 AM   #23
100_Percent_Juice
(40 percent vodka)
 
100_Percent_Juice's Avatar
 
Real Name: Joel
Join Date: Oct 2006
Location: Reno, NV
Posts: 4,446
 
Car: 2004WRX
Class: Baby-Hauler/GroceryGetter
Default

Aluminum is very hard to weld. If you want to get it done for cheap you can have a student do it. I have done welding for about 8 years and i still dont like welding aluminum. You can take your design to RTI and find a student there who is good at tig welding and pay him to make it for you. Its cheap labor and if you can find the right guy, it can be really good quality. Ive done it once or twice.
__________________
"A power nap is when you sleep on someone who is weaker than you." - Dimitri Martin
100_Percent_Juice is offline   Reply With Quote
Old 2006-12-04, 01:53 AM   #24
left footed whooten
EJ251
 
left footed whooten's Avatar
 
Real Name: Dylan
Join Date: Apr 2005
Location: Truckee
Posts: 539
 
Car: 06 WRX wagon CGM
Class: Stuck working weekends
Default

I have a friend who works at a design firm in Stead who can weld aluminnium very well. He will want some seat time in the sucker though.
__________________
I'd rather drink muddy water and sleep in a hollow log
left footed whooten is offline   Reply With Quote
Old 2006-12-04, 08:20 AM   #25
AtomicLabMonkey
Nightwalker
 
AtomicLabMonkey's Avatar
 
Real Name: Austin
Join Date: Dec 2002
Location: Oshkosh, WI
Posts: 4,063
 
Car: '13 WRX
 
YGBSM
Default

As said, the frame would be heavy using steel. You'd have to go with pretty thin wall tubing to mitigate the weight. Alum is much lighter but will cost a lot more; it's more difficult/takes longer to weld and the tubing cost is higher than steel. It's also not as rigid as steel.

The design as drawn is pretty bulky; you might want to consider bolt-together sections, like a separate front & rear clip that bolts together or is hinged for fold-up, and uprights that will come off the base frame - to make storage a lot easier.
__________________
"None of you seem to understand. I'm not locked in here with you.. you're locked in here with me."
AtomicLabMonkey is offline   Reply With Quote
Reply

Thread Tools

Posting Rules
You may not post new threads
You may not post replies
You may not post attachments
You may not edit your posts

BB code is On
Smilies are On
[IMG] code is On
HTML code is Off

Forum Jump

Similar Threads
Thread Thread Starter Forum Replies Last Post
Ongoing project thread: DoinkWRX sperry General Subaru Discussion & Club Chat 34 2016-09-13 10:53 PM
update on rx-7 nightmare...project murphy Technical Chat 90 2009-02-11 05:52 PM
i need winter tires bxracer69 User Classifieds 21 2005-11-30 04:15 PM
Winter wheel/tire setup for an '05 STi? JC Technical Chat 7 2005-08-11 09:39 PM
Winter and Street tires for sale mpeyton User Classifieds 10 2004-11-17 08:30 PM


All times are GMT -8. The time now is 04:28 AM.


Powered by vBulletin® Version 3.8.4
Copyright ©2000 - 2026, Jelsoft Enterprises Ltd.
All Content Copyright Subaru Enthusiasts Car Club of the Sierras unless otherwise noted.